Krovni pokrov
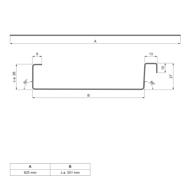
FALZ profil dvostruki stojeći šav
| Materijal | Pocink obojeni MATT |
| Boja | Vinsko crvena MATT |
| RAL | 3009 |
Opis proizvoda
KJG FALZ profil je moderno rješenje krovnog pokrova s elegantnim izgledom i dugim vijekom trajanja. Radi se o gotovoj limenoj traci sa sustavom dvostrukog stojećeg šava, koja se isporučuje već profilirana izravno na gradilište, bez potrebe za dodatnim profiliranjem. To znači bržu ugradnju, precizno poravnanje i maksimalnu uštedu vremena na mjestu izvođenja.
Zahvaljujući preciznoj izradi i kvaliteti materijala, KJG FALZ profil prikladan je za nove objekte i rekonstrukcije krovova, od tradicionalnih do modernih arhitektonskih projekata. Idealan je za male nagibe od ± 3° te podnosi i zahtjevne klimatske uvjete.
Prednosti KJG FALZ profila:
- Isporučuje se već profiliran, spreman za montažu.
- Brtvljen spoj bez vidljivih vijaka.
- Otpornost na vjetar, kišu i snijeg.
- Elegantan i čist izgled krova.
- Mala težina pokrova.
- Široka paleta boja i površinskih obrada.
- Pokrov bez potrebe za održavanjem i dugog vijeka trajanja.
Kratica boje: OCM
Kod proizvoda: FALZ-DSD
Tablica proizvoda
* proizvodnja po narudžbi
DX51D EN 10346 Z 225 g/m2 ZM
PE35μ/PE7μ, SDP35 MATT-T Polyester
Preporučene maloprodajne cijene
Ostale komponente

Prodajna mjesta
U Europi smo doma. Zastupljeni smo u 14 zemalja i stalno rastemo. Gdje god tražite odgovornog partnera za svoj krov, kontaktirajte nas.
Naći prodajno mjesto
Imate li pitanja o našim proizvodima ili uslugama?
Newsletter
Pretplatite se na naš newsletter i redovito primajte korisne informacije o proizvodima KJG.















